重庆弱电机房工程中UPS电源安装指南
重庆弱电机房工程中UPS电源安装指南-重庆监控安装工程公司一步步教你蓄电池安装施工!
一)UPS安装指导
(一)场地规划
1.1安装环境
lUPS设计为室内安装,UPS内部采用风扇强制风冷,应确保机柜周围预留有足够的空间以保证其通风散热。
lUPS应远离水源、热源和易燃易爆物品。避免将UPS 安装在有阳光直射、粉尘、挥发性气体、腐蚀性物质和盐份过高的环境中。
l严禁将UPS 安装在具有金属导电型尘埃的工作环境中。
l电池工作的**温度是20℃~30℃,在温度高于30℃环境中工作会降低电池使用寿命,在温度低于20℃环境中工作会缩短电池备电时间。
l蓄电池在充电末期会有少量氢气和氧气产生,因此必须保证蓄电池安装环境的新风通风量满足EN50272-2001的要求。
lUPS采用外置电池,必须安装一个电池保护器件(如直流断路器),且电池保护器件应尽量安装在靠近电池的地方,与电池之间的连接应采用最短走线距离。
1.2场地选取
l确保地面或安装平台能承受UPS、电池和电池架的重量。
l没有振动颠簸且垂直倾斜度不超过5度。
l无需马上安装UPS,须将UPS存储于室内,避免过湿或温度过高的环境。蓄电池需要在干燥低温,通风良好的地方储存,最适宜的储存温度是20℃~25℃。
1.3尺寸及其重量
应该确保配电室有足够的空间来放置UPS系统,UPS机柜的尺寸如下图1‑1所示。

(d) 4模块机柜尺寸图(单位:mm)
图1‑1机柜尺寸图(单位:mm)

图1‑2机柜空间预留示意图(单位:mm)
应确保地面或安装平台能承受UPS机柜、电池和电池架的重量,电池和电池架的重量根据实际使用情况计算,UPS 的重量如表1‑1所示。
表3‑1UPS重量

(二)卸货开箱
2.1机柜搬运及开箱
机柜搬运及开箱其具体操作步骤如下:
步骤1 确认UPS包装无损坏(如有运输损坏,请立即通知承运商);
步骤2 使用叉车将设备运输至指定地点,见图1‑3;

图1‑3将设备运到指定地点
步骤3使用一字锥和钳子,先将钢边木箱顶板打开,再将四周侧板分别打开。如图1‑4所示;

图1‑4拆开箱体
步骤4拆开箱体四周侧板后,移除缓冲泡沫,如下图1‑5所示;

图1‑5移除缓冲泡沫
步骤5检查设备完好性:
1. 目检UPS 外观,检查UPS 是否存在运输损坏。如有损坏,请立即通知承运商;
2. 对照发货装箱清单,检查随机附件型号是否齐全、正确。如发现附件缺少或型号不符,应及时做好现场记录,并与我司当地办事处联系;
步骤6确认设备完好后,拆除固定机柜与木托的螺钉;
步骤7将机柜放置到安装位置。
注意小心拆卸,不要划伤机体。
包装拆卸完毕后,请请废弃物品按绿色环保要求处理。
(三)安装固定
3.1固定机柜
对UPS机柜的重量的支撑有两种方式,一是通过其最下部的四个滚轮支撑,可以方便安装时任意移动机柜;二是通过其底部的相应四个地脚支撑,地脚的支撑方式一般用于机柜固定位置后,长期支撑机柜。地脚与滚轮的示意图如下图1‑6所示。

(c) 4模块机柜尺寸图(单位:mm)
图1‑6地脚与滚轮示意图(仰视图)
机柜的具体安装过程如下:
步骤1 确定机柜支撑脚完好及安装地面的平整;
步骤2使用扳手等工具,逆时针方向拧动地脚螺栓,使地脚收起,此时由滚轮支撑机柜;
步骤3通过滚轮将机柜推到安装点并固定;
步骤4 使用扳手等工具,顺时针方向拧动地脚螺栓,使地脚放下,此时由地脚支撑机柜;
步骤5 检查四个地脚是否牢固一致,确保机柜稳定;
步骤6 固定安装完毕。
地板承重能力不够时应当增加辅助装备,将机柜重力分散至更大的支撑平面上。例如,平铺大面积铁板或增加支撑脚面积。
(四)电池
电池组由电池的+,-和N线三根线引出与UPS系统相连,其中电池N 线是从正负电池组中间连接点引出的参考电位,具体接线如下图1‑9所示。

图1‑9电池串联示意图
电池带有电压,有致命危险,安装时请遵守安全注意事项。安装时确保电池组到电池组外置开关,外置开关到UPS系统间的极限正确,保证不要接反。
(五)进线方式
一般4模块机柜系统进线方式如下图1‑10所示。

(c) 14模块机柜上进线方式示意图
图1‑10进线方式示意图
(六)功率电缆
6.1功率线缆规格
UPS系统推荐功率线缆如表1‑2表所示。
表1‑2功率线缆推荐线径

l环境温度:30℃。表3‑2中推荐线缆只适用于以下使用条件:
l交流电压损失小于3%,直流电压损失小于1%,表中UPS 的交流电缆长度均不大于50 米,直流电缆长度均不大于30 米,超过后应加大电缆规格。
l90℃铜导体软电缆当外界条件变化时,需参考IEC60364-5-52 和当地相关规范进行验证。表中的电流值针对的是额定线电压为380V 时的数据,对于400V 额定电压,电流值需乘以0.95;对于415V 额定电压,电流值需乘以0.92。
l主要负载为非线性负载时,N 线截面需要增大到1.5 倍~1.7 倍。
6.2功率线缆端子规格
线缆端子要求见表1‑3所示。
表1‑3线缆端子要求

UPS断路器规格推荐如表1‑4所示。6.3断路器
表1‑4推荐断路器规格表

6.4功率线缆的连线
具体的连线过程按如下步骤进行。
步骤1 确认所有输入配电开关彻底断开,机柜内部电源开关全部断开。在这些开关处贴上警告标识,以防他人对开关进行操作;
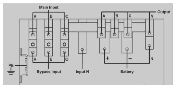
步骤2 打开机柜前门,取下保护盖板,可见输入输出端子、电池端子和接地端子。接线端子布局如图1‑11所示;

(d) 4模块机柜接线端子布局图
图1‑11接线端子布局图
步骤 3 将输入地线连接到输入接地端子上。注意地线连接须符合当地及国家相关规定;
步骤4 按照图3‑11将交流输入电缆连接到UPS的输入端子(Main Input);将输出负载电缆连接到UPS的输出端子(Output);
步骤 5 连接电池线缆到UPS的电池接线端子(Battery);
步骤 6 检查接线无误后,装回保护盖板,完成接线。
